logo
VIP

ул. Советская 1 этаж 3 комнаты

  • 2 gün öň
  • Ашхабад / ул. Советская (Гарашсызлык шаёлы)
  • 155

Описание

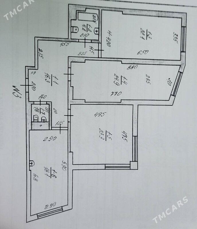
️от хозяина ️ул. Советская (рядом с Олимпийским городком) ️3х комнатная имеется подвал + место для парковки ️1-ый этаж ️общая площадь 110 м2 ️Турецкий застройщик - окна панорамные ️в прописке люди есть, будет перепрописка ️выкупленная долга нет ️цена 115 000 (торг уместен) ************************************************ ️eýesinden ️Sowetskiý köçe (Olimpiýa şäherçesine golaý) ️3 otagly podwaly bar + awtoulagy goymak un stoyanka bar ️1-nji gat ️ umumy meýdany 110 m2 ️Türkleriñ guran jaýlary - aýnalar panorama ️ýazgyda adamlar bar (1 aý möhlediñ içinde çykarylar) ️bergi yok ️baha 115 000 (oñusyk bolar)

Категория : Недвижимость / Продажа квартир и домов
Этажность дома : 12
Тип недвижимости : Квартира
Ремонт : Косметический
Количество комнат : 3
Этаж : 1
Общая площадь : 80-110
Обмен : Нет
Цена : 115 TMT
Место : Ашхабад / ул. Советская (Гарашсызлык шаёлы)
Номер телефона : Показать
Ашхабад / ул. Советская (Гарашсызлык шаёлы) / 2 gün öň

Похожие объявления

3-комн. 1-этаж 30-мкр.

Ашхабад

3 gün öň

ВЫСОКОПОТОЛОЧНЫЙ ДОМ Продаётся️ул.Свобода - Островского (круг) нап...

ХОЗЯИН КОТТЕДЖ 4 КОМ 100 кв

Ашхабад

20 sag öň

От ХОЗЯИНА ПРОДАЮ КОТТЕДЖ 2 х этажный в районе Мечети по Шевченко 100 ...

satlyk Mir 2. 3kom

Ашхабад

16 sag öň

Baha Amatly Satlyk Mir 2. 5 Etajkan 4 Etajy 3 kom Remontly Hemme ...

МИР 2/2 4 КОМ 1 ЭТАЖ ГАУДАНКА

Мир 2

14.11.2025

ПРОДАЖА 4 КОМ МИР 2 ПО ЛЕНИНА ГАУДАНОВСКАЯ ПЛАНИРОВКА НА 1...

30-MKR.,1/2-KOMNAT.KWARTIRA

30 мкр

20 sag öň

30-Nji Mikroraýon, Swoboda köçesine golaý, "Awaza" kafesiniň ýanynda,...

Taslama 3 kom

Ашхабад

04.11.2025

Taslama 2 et 3 komnat 100m² gos rem yeri gaty gowy yollun ugry Gulzem...

Похожие продавцы

И.П."Behişt-Binasy"
И.П."Behişt-Binasy"
  • "Behişt-Binasy"АГЕНСТВО НЕДВИЖИМОСТИ

  • Бизнес профиль
ИП "РЫСГАЛЛЫ УЛКЕ"
ИП "РЫСГАЛЛЫ УЛКЕ"
  • ИП "РЫСГАЛЛЫ УЛКЕ" АГЕНСТВО НЕДВИЖИМОСТИ ПРЕДЛАГАЕТ ВАМ РЯД УСЛУГ

  • Бизнес профиль
H.K."BATYR-BABA"realtor JEMAL
H.K."BATYR-BABA"realtor JEMAL
  • GOZGALMAÝAN EMLÄK AGENTLIGI

  • Бизнес профиль
RESMI KEPIL
RESMI KEPIL
  • СТРАХОВАЯ КОМПАНИЯ

  • Бизнес профиль
Netijeli Hyzmat Remont Tehnika
Netijeli Hyzmat Remont Tehnika
  • Boyler Kirmaşyn Haladilnik Kondisaner Berjermek Servisni Centr.

  • Бизнес профиль
H.K."PÄK EMLÄK"
H.K."PÄK EMLÄK"
  • ПОМОЩЬ В ПРОДАЖЕ ,В ПОКУПКЕ И В ОФОРМЛЕНИИ ДОКУМЕНТОВ

  • Бизнес профиль